Le projet occupe deux parcelles d'un ensemble architectural situé dans un quartier résidentiel en mutation. Les immeubles datent de 1921 et forment un bâtiment d'angle de style éclectique, avec des alternances de briques rouges et de bandeaux de cimentage et un soubassement en pierre bleue. L'ensemble comporte trois niveaux (rez-de-chaussée, 1er et 2ème étage) et un sous-sol.
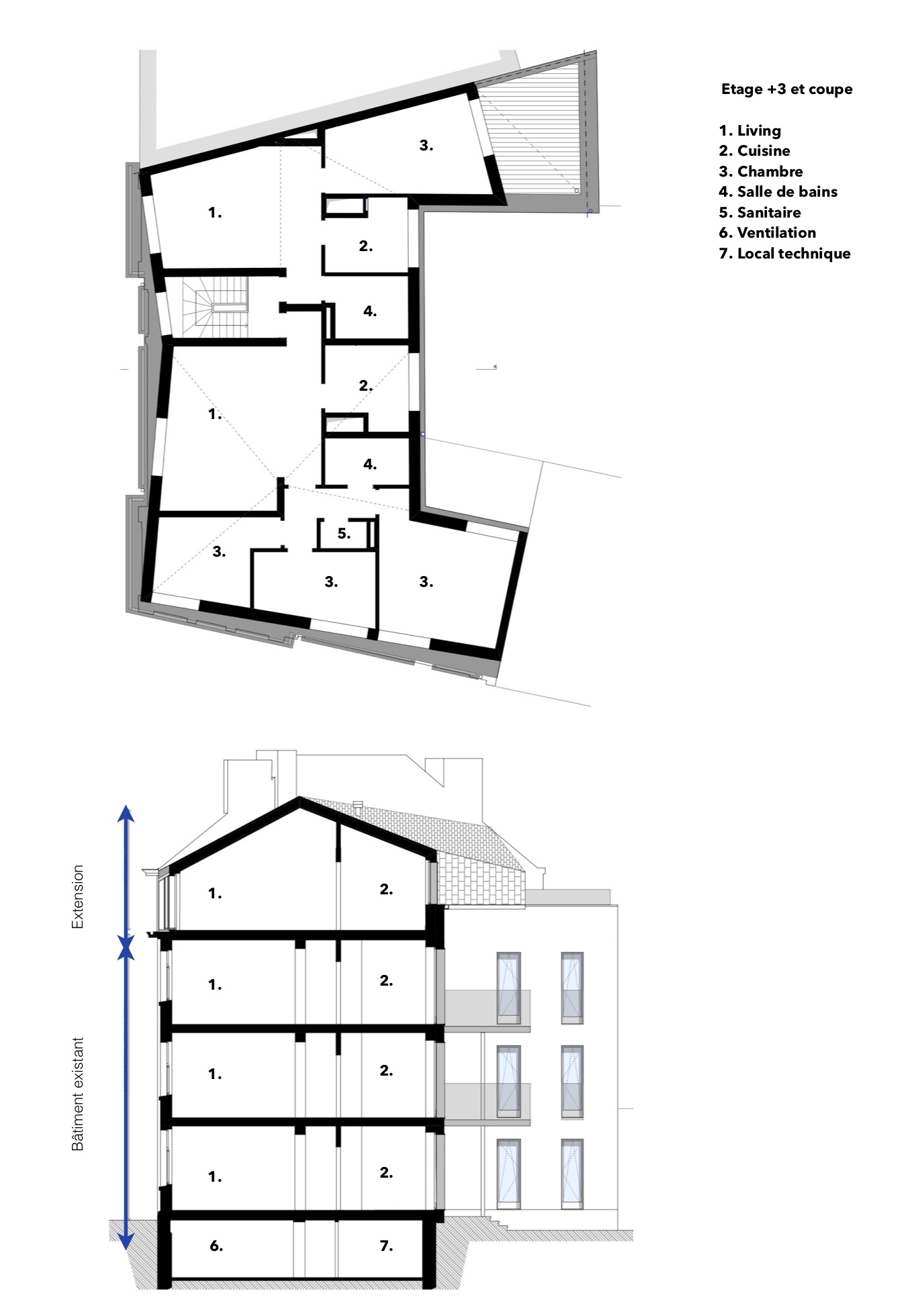
Le projet comprend la rénovation lourde avec restructuration des appartements et des extensions et un nouvel étage contemporain en toiture afin d’offrir des appartements de qualité.
L'ensemble est composé de 8 appartements adaptés au logement social, notamment des familles nombreuses. Il offre 4 appartements d'une chambre, 3 appartements de trois chambres et 1 appartement de quatre chambres.
L’extension en toiture a été réalisée en construction légère en ossature bois de 166 m2.
La rénovation de l'immeuble permet d’atteindre le standard basse énergie (60kWh/m2 an).
Par le biais de divers choix interventions techniques en valorisant des matériaux durables, nous sommes parvenus à atteindre le standard basse énergie (60kWh/m2 an), répondre aux normes incendies et acoustiques tout en réorganisant les logements de manière rationnelle.






