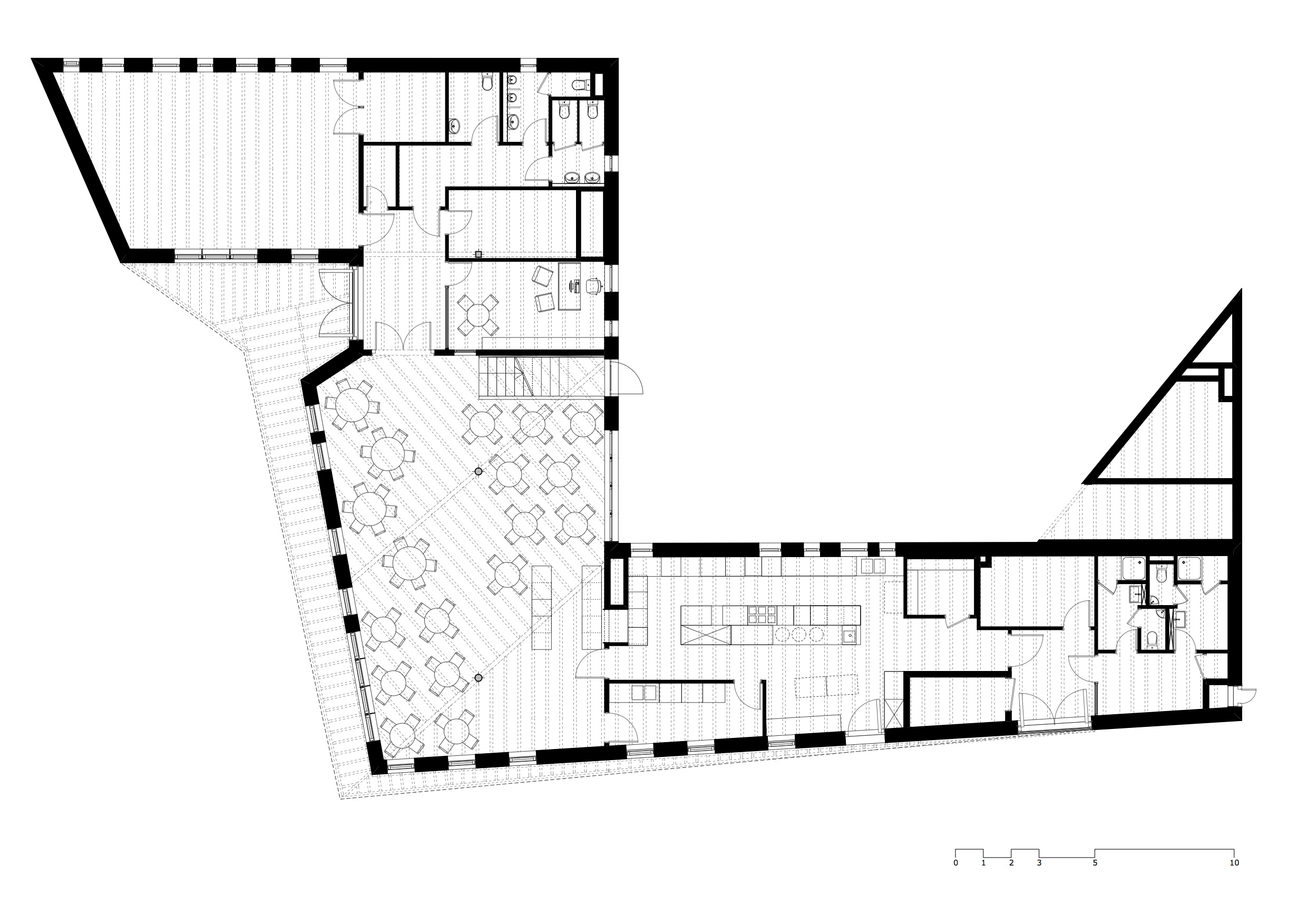
La restructuration du socle de parking de la “Tour des Goujons” en restaurant social et équipement de quartier résultent d’une démarche participative initiée par le CQD midi. Le bâtiment et ses abords relient désormais la tour des Goujons au quartier. Ils offrent des nouveaux lieux conviviaux de rencontre pour les habitants avec pour objectif de soutenir le secteur de la formation par le travail de personnes fragilisées et la production locale de repas pour la commune. Le bâtiment est exemplaire en terme de durabilité, circularité, réutilisation, démontabilité et promotion des circuits courts.






