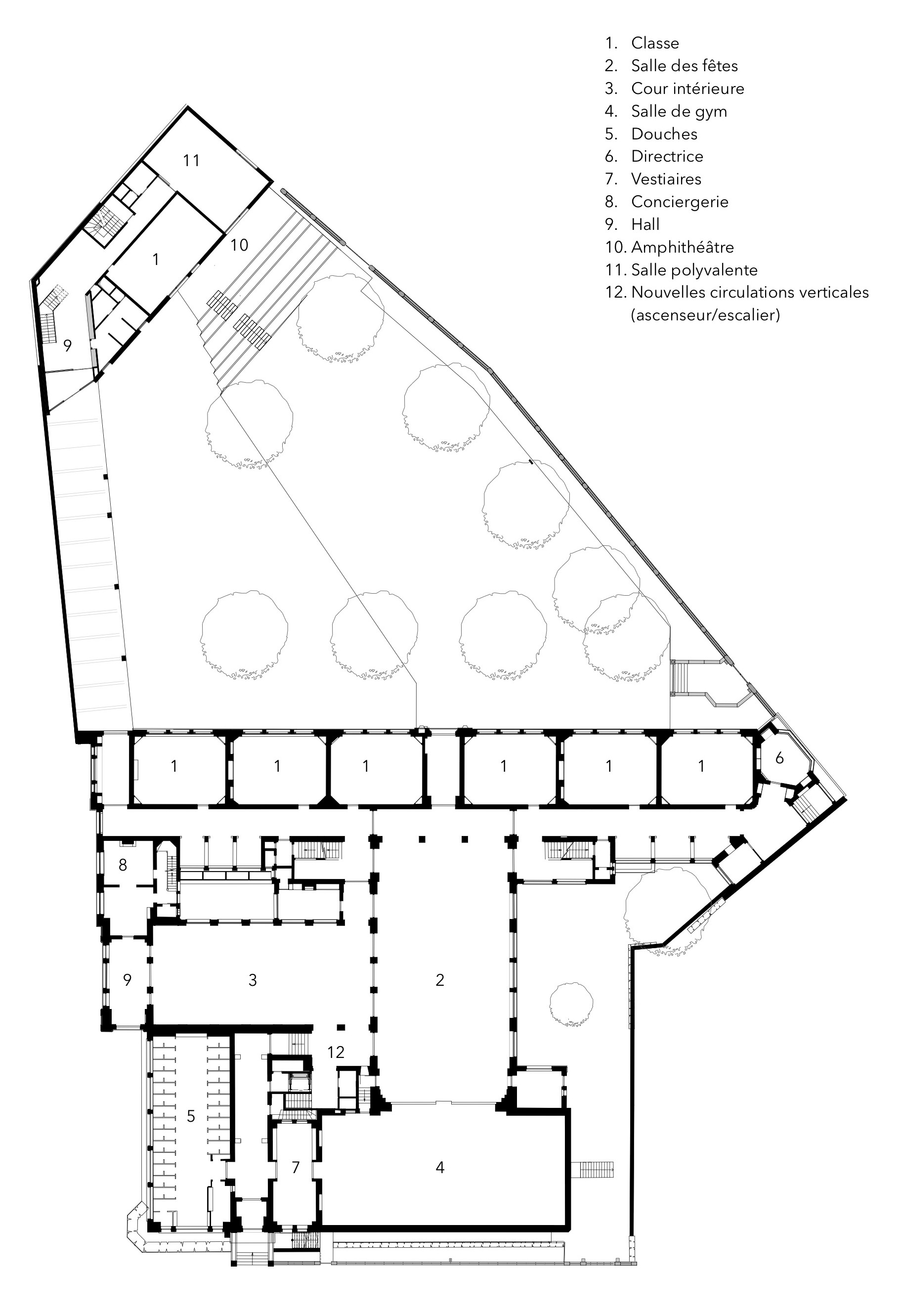
L'école a été construite en 1935 sur base des plans de l'architecte communal Henri Charles Wildenblanck. La totalité du bâtiment, y compris le mobilier fixe, est classée comme monument depuis 2007. Le bâtiment de l’école d’origine est de grande qualité et n’a jamais subis aucune transformation. Il s’agit de la première restauration de grande ampleur. Les châssis en acier, relativement bien conservés, sont un témoignage important de la recherche d'excellence technique qui a guidé la construction de l'école. Le projet se base sur le principe de restructuration interne et d'exploitation du potentiel intérieur existant du bâtiment tout en préservant l'architecture et le patrimoine bâti . Ainsi, le rez-de-chaussée n’a subit qu’une restructuration du noyau de circulation. Le programme de rénovation comprent également l’introduction d’une section maternelle sur le site. C’est d’abord dans un esprit de conservation que le choix a été fait de construire un nouveau bâtiment, au fond de la cour. Pour voir le nouveau bâtiment, cliquez ici.





